Bazár - zadarmo inzercia na internete
Home
Home
Moje inzeráty
Pridať inzerát
Sledovanie inzerátov
Porovnanie inzerátov
Topovať / Zvýrazniť
Kontakt
Čo :
Všetky kategórie
Oblečenie a obuv
Deti
Auto
Motocykle
Nábytok a bývanie
Reality
Zvieratá
Stroje a náradie
Stavba, dom a záhrada
Šport
Počítače
Mobily
Foto
Elektro
Hudba
Vstupenky
Knihy
Služby
Práca
Ostatné
Kde :
Cena :
Eur
HĽADAŤ
Zadarmo inzercia na internete
Moje inzeráty
Porovnanie inzerátov
Sledovanie inzerátov
Pridať inzerát
Vyhľadávanie inzerátov
Čo :
Všetky kategórie
Oblečenie a obuv
Deti
Auto
Motocykle
Nábytok a bývanie
Reality
Zvieratá
Stroje a náradie
Stavba, dom a záhrada
Šport
Počítače
Mobily
Foto
Elektro
Hudba
Vstupenky
Knihy
Služby
Práca
Ostatné
Kde :
Cena :
Eur
HĽADAŤ
späť k inzerátom
|
Topovať / Zvýrazniť
Prenájom nebytového priestoru
Prenájom
|
Obchodné priestory
|
Martin
|
01.02.2024
Prenájom nebytového priestoru
CENA: Dohodou
Prenájom nebytového priestoru
Prenájom
|
Obchodné priestory
|
Martin
|
01.02.2024
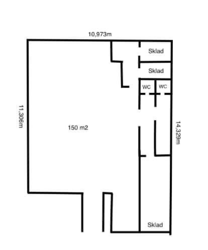
Ponúkame nebytový priestor v rozlohe 150 m2. Vhodný na piváreň, klub.. Pre viac info nás kontaktuje na čísle: 0918 749 371/trnkova@rucon.sk
Cena: Dohodou
INZERENT
predajca :
Trnková
telefón :
0918749371
lokalita :
Martin
Inzerátov :
5 - inzerátov
ID inzerátu :
58678
Porovnať inzerát
Sledovať inzerát
Poslať známemu
Nahlásiť chybu
RÝCHLY KONTAKT
* Meno :
* Email / Tel :
* Správa :
Súhlasím so spracovaním osobných údajov
Odoslať správu